$1,700
































































































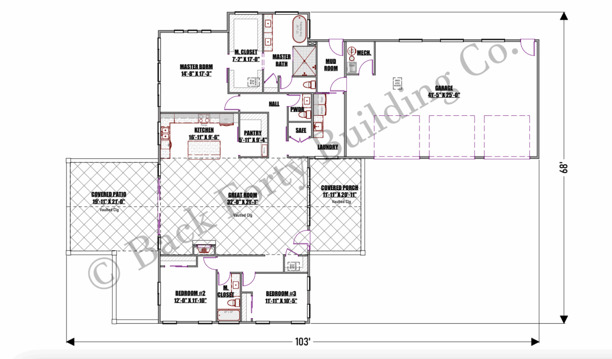
This “L-shape” barndominium is an excellent choice for homeowners who want single-level living with major amenities (in under 2400 square feet!). Not only does the courtyard entry exude luxury, but numerous patios also add to the curb appeal and provide functional outdoor living. A separate mud room entry, walk in pantry, and expansive master suite “wing” make this an ideal layout for everyone from families to empty-nesters!
The Jackson is suitable for stick, or post frame construction
Build pictured courtesy of Big Sky Homes of Montana




• Building elevations and 3D exterior sketch
• Detailed floorpan
• Window and Door Schedules
• Roof Plan
• Lighting Plan (note that most clients use this as a starting point, and work with their electrician to customize the electrical fixture layout to suit their needs)
• Standard and Typical Details (stair framing, footings, joists etc)
• General notes and specifications
• Prelim-structural Foundation Slab Plan (our plans can be used for steel, pole, or stick-built construction in any geographic location. You’ll work with your contractor and local building department to finalize foundation plans specific to the construction code in your area, based on your desired building materials and the snow and wind load rating in your zone. We do include detailed notes and call out general locations for plumbing drops, footings etc. in your plans. Please note that some building departments may require an engineered stamp on your foundation plans from an Engineer licensed in your state, which we are happy to provide for an additional cost)
Our drafting and design team can modify plans to fit your needs or style, whether it’s adding a garage bay, moving walls, changing roof pitch, adding a walk-in shower, or rearranging square footage to accommodate your budget! If you’re interested in modifying plans, please reach out to us via our contact page.
PDF files of your plans are sent within 24 hours of completing your purchase, to the email address you list at checkout. PDF files can be used to print plans at any scale.
All plan sales are final, however, we are happy to make changes or edit plans for a fee, after you’ve purchased the PDF files. Please contact hello@backfortybuildings.com with questions about plan modifications.
2022 Copyright. Design by Back Forty Buildings